Działki budowlane na Osiedlu Fazaniec w Bytomiu w dzielnicy Szombierki.
Działki budowlane zlokalizowane są w sąsiedztwie Parku Fazaniec – jednego z pierwszych parków na terenie Górnego Śląska, założonego w XIX w. Tu do 1928 r. funkcjonowała Bażanciarnia – stąd nazwa parku, niem. Fasan – bażant.
Park porastają głównie dęby, ale także jawory, lipy, klony zwyczajne, jesiony wyniosłe i graby oraz olchy czarne. Widoczne są także wprowadzone buki, topole oraz robinie akacjowe.
Działki są bardzo dobrze skomunikowane – 10 minut do centrum Bytomia i Rudy Śląskiej – Orzegowa.
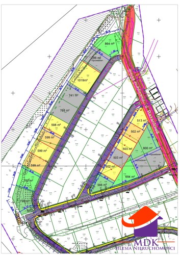
W naszej ofercie Posiadamy działki o powierzchni od 502 do 1019m2 - Wszystkie dostępne działki widoczne są na mapie załączonej w galerii.
Działki zaznaczone na zielono są gotowe do sprzedaży, działki zaznaczone kolorem żółtym lub pomarańczowym są w trakcie podziału (będą gotowe w drugiej połowie roku).
Działki zaznaczone na szaro są sprzedane.
Cena 350 zł brutto za mkw.
Udział w drodze 17.220 zł brutto
Media: woda, prąd, gaz, kanalizacja sanitarna
Opis nieruchomości
-Bezpośrednie otoczenie nieruchomości - Park Fazaniec;
-Uzbrojenie terenu - energia elektryczna, gaz, woda, kanalizacja sanitarna;
-Ukształtowanie terenu - działki niezabudowane, bez drzew, porośnięte trawą;
-Warunki zabudowy - tereny zabudowy mieszkaniowej jednorodzinnej.
Zapraszamy na prezentację nieruchomości, Zadzwoń i umów się już dziś!!



